Бутик-комплекс в центре Лимассола
Площадь от 50 м²
60 дизайнерских апартаментов
Исторический центр Лимассола
Престиж
с первого взгляда
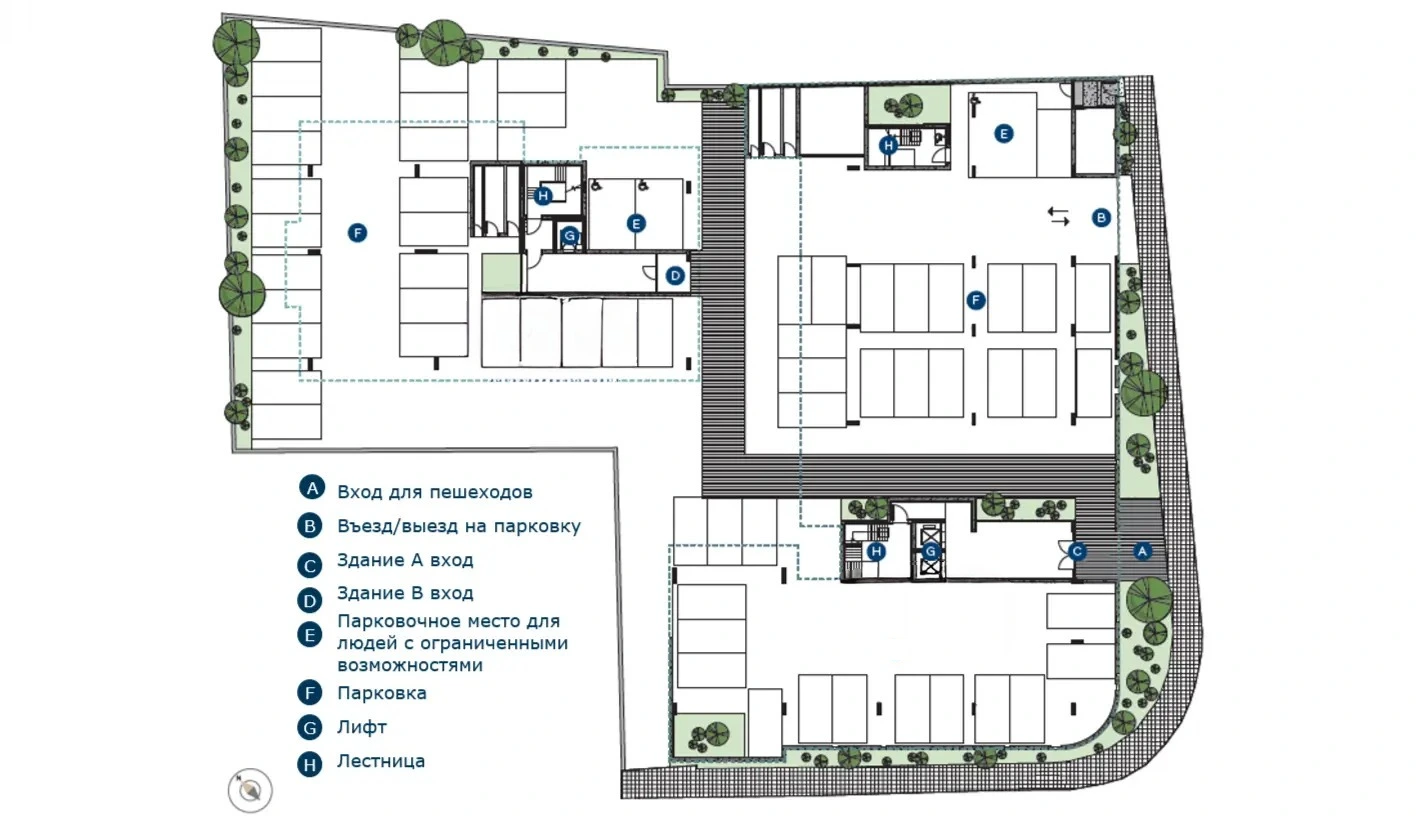
Бутик-проект предлагает 60 дизайнерских апартаментов с 1–2 спальнями в самом сердце исторического центра Лимассола. Каждая квартира полностью готова к проживанию: предусмотрена встроенная техника, система отопления пола, кондиционирование, а также охрана и видеонаблюдение. Для удобства жителей предусмотрена парковка с зарядными станциями для электромобилей.
Комплекс состоит из двух клубных домов высотой 3 и 5 этажей, выполненных в изысканной архитектуре. Дома отличаются продуманной планировкой, качественной отделкой и современными инженерными решениями, обеспечивающими комфорт и функциональность.






Генплан проекта

